凯迪仕办公室设计




























品牌名称:凯迪仕办公设计
公司介绍:
Kaadas 凯迪仕专注于智能锁领域,是一家集产品研发、制造、品牌、全球销售、安装、售后于一体的全产业链公司,是国家高新技术企业。凯迪仕品牌成立于 2009 年,一直秉承“成就客户、团队合作、拥抱变化、诚信、激情、工匠精神”的核心价值观,为全球每一位消费者提供舒适,便捷,安全的高品质生活。目前凯迪仕有 2600 多名员工,上万家全球终端网点,销售规模位居全球前列。在海外渠道,截至 2023 年凯迪仕智能锁已销往全球 6 大洲、36 个国家,为全球众多家庭带去高品质生活体验。
LOGO是一份悠扬的诗歌,是对自然之美的致敬,也是对度假、放松和家庭欢乐时光的渴望。在这片海天一色的天堂,海浪的舞动,带来了无限的温馨与浪漫。
办公设计概念:
概念:科技·创新·国际
设计理念:
Kaadas凯迪仕作为一家专注于智能锁领域的全产业链公司,我们的设计理念旨在突显科技感、创新性,同时融入国际化的氛围。通过灰色和银色的极简色调,打造一个现代化、品质感极强的办公空间。
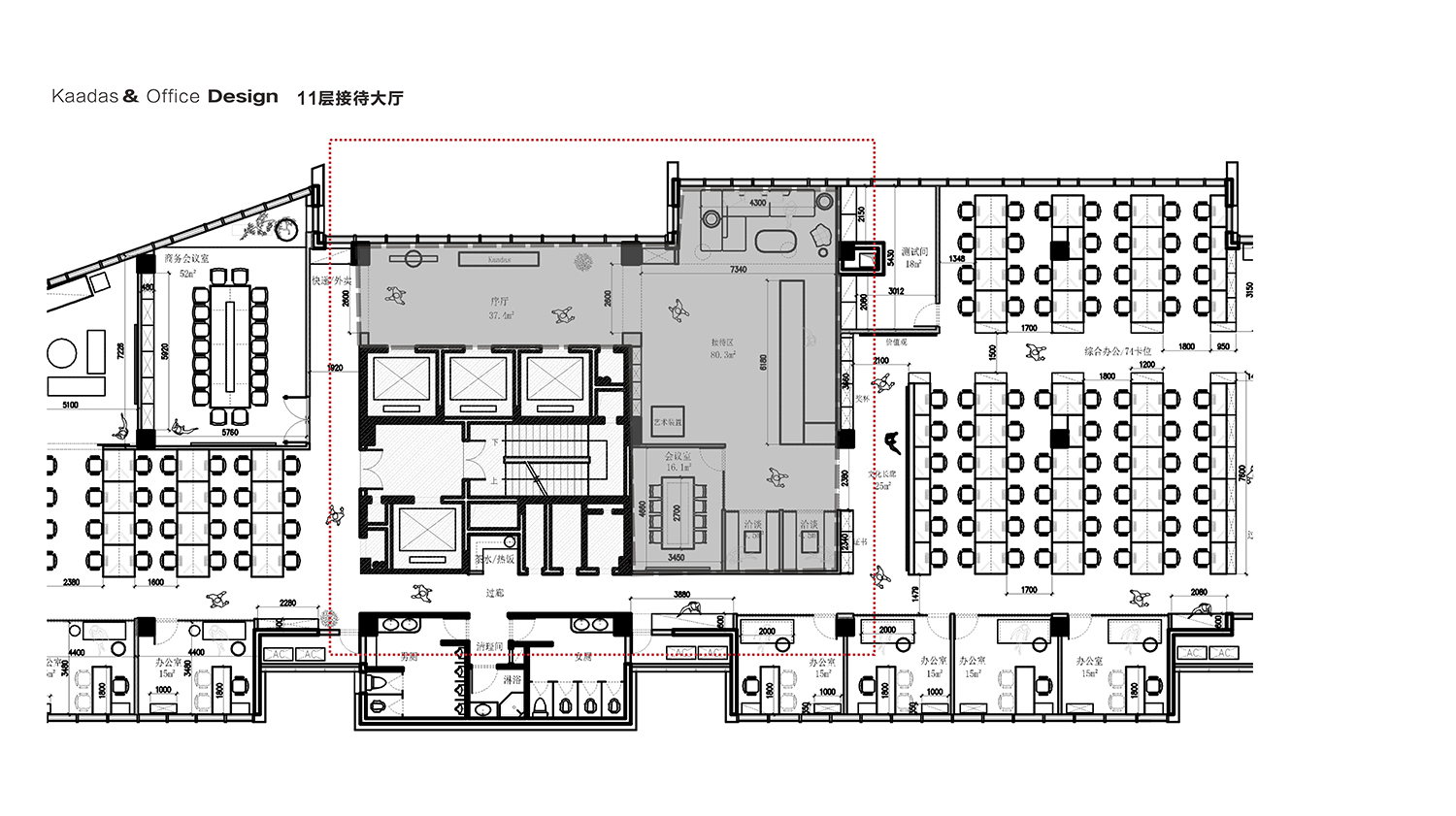
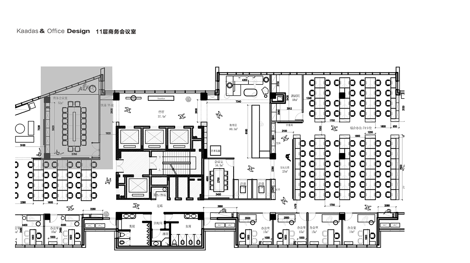
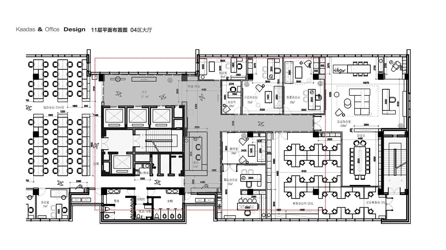
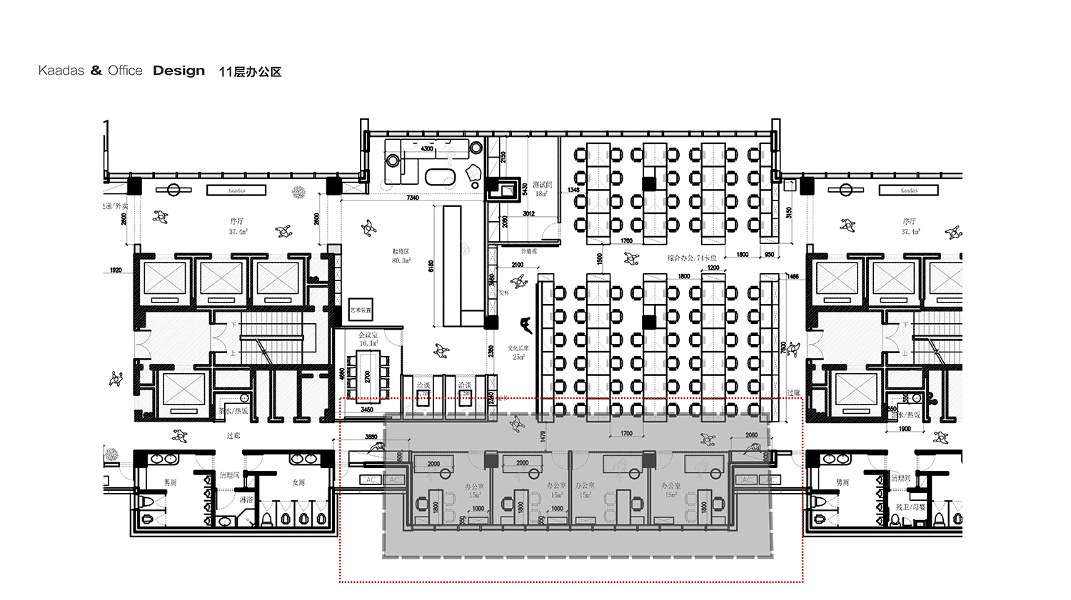
空间布局:
开放式工作区:
设计一个宽敞、开放的办公区域,促进团队合作和沟通。简洁的办公桌、现代感的办公椅,使整个工作区域既具有舒适感又表达出现代科技的氛围。
会议室设计:
采用玻璃隔断,使会议室显得通透明亮。椭圆形或者矩形的桌子,搭配现代感十足的会议椅,打造专业、高效的会议空间。
休憩区域:
设计一个温馨、舒适的休憩区域,配备舒适的沙发和独特的照明,为员工提供轻松的休息环境。可以考虑在休憩区域放置一些智能锁产品的展示,提醒员工工作的关键性质。
展示区:
设计一个产品展示区域,突出Kaadas凯迪仕的智能锁产品。采用灰银色展示架、LED照明,使产品更加突出,向员工和访客展示公司的技术实力和创新能力。
个性化办公空间:
在办公区域设置一些个性化办公空间,允许员工根据自己的工作需求进行定制。例如,设置高度可调的办公桌、私密性良好的独立工作空间,满足员工对工作环境的个性化要求。
装饰与配色:
配色: 主要以灰色和银色为主,突出品质感和科技感。
装饰: 配合公司标志色调,可以在空间中融入一些绿色植物,增添生机。墙上可以悬挂一些公司的技术专利图案或创新荣誉,彰显公司的技术实力。
品牌元素体现:
Logo展示: 在办公空间的显眼位置,如入口或休息区域,设计专门的Logo展示区域,让公司Logo成为空间的焦点之一。
品牌色调渗透: 灰色和银色是公司品牌的主要色调,确保这些色调在整个空间中得到合理的渗透,不仅在墙壁和地板的选择上,还可以在家具、装饰品等方面呈现。
工作环境设计:
人性化办公桌椅: 为员工提供人性化设计的办公桌和椅子,以提高工作效率和舒适度。
可调式办公桌: 鼓励员工灵活工作,可以站立或坐下工作,提高工作舒适性和健康性。
文化融入:
企业价值观展示: 设计一面墙面或区域,用于展示公司的核心价值观、使命和愿景,以强化员工的企业文化认同感。
员工参与: 创造一个交流和合作的环境,可以设计一些交流墙、团队活动区,激发员工的创造力和团队协作精神。
创新空间:
创新角: 设计一个专门的创新角,配备白板、沙发、可移动桌椅等,鼓励员工进行头脑风暴和团队创新。
技术展示区: 在办公室内设置技术展示区,展示公司最新的智能锁产品,提高员工对公司产品的认知。
品牌氛围强化:
音乐与灯光: 利用环绕音响系统和智能灯光系统,打造舒适的工作氛围,增加品牌的科技感。
品牌字体应用: 在空间设计中,使用与公司品牌字体相符的字体,强化品牌一致性。
设计总监:周平
设计经理:华伦
项目经理:Jem
2023
设计总监:周平
设计经理:华伦
项目经理:Jem
2023

